Не нашли что искали? Спросите у нас! Имеем архивы на 140 ТБ. У нас есть все современные проекты повторного применения и проекты ремонта советских типовых зданий. Пишите нам: info@proekt.sx
Вам не нужен весь проект? Сможем продать отдельную его часть (раздел или подраздел). Напишите нам! Для связи: info@proekt.sx
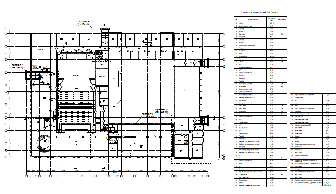
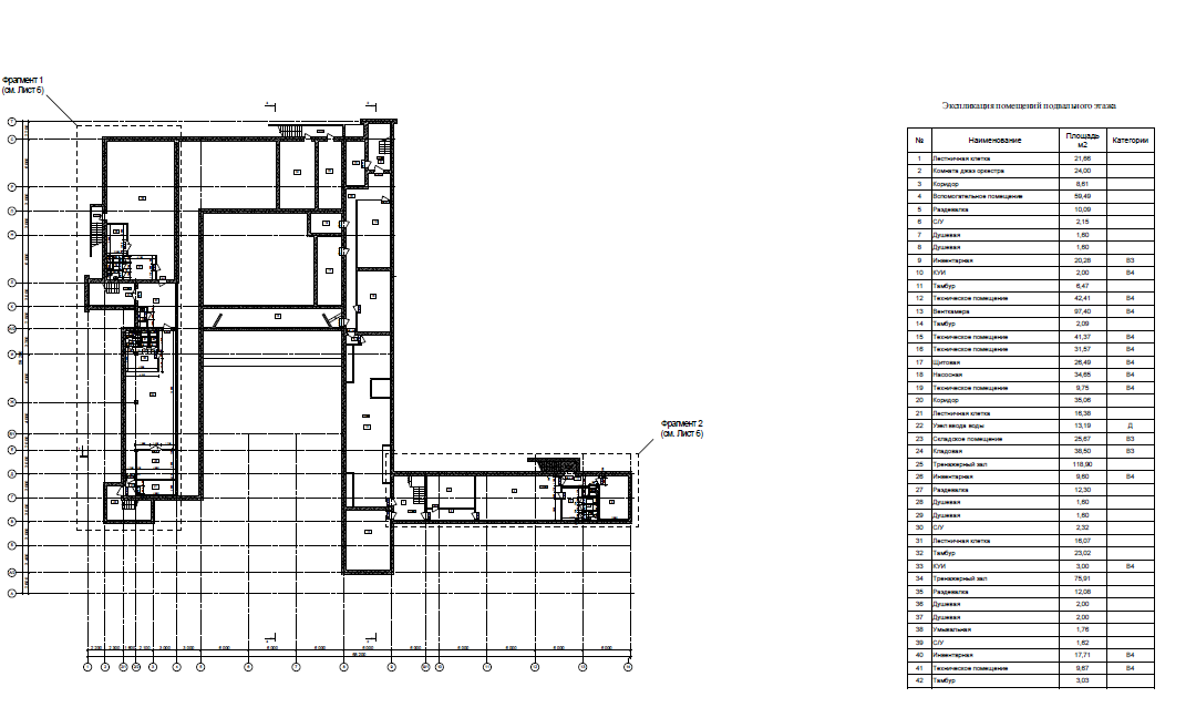
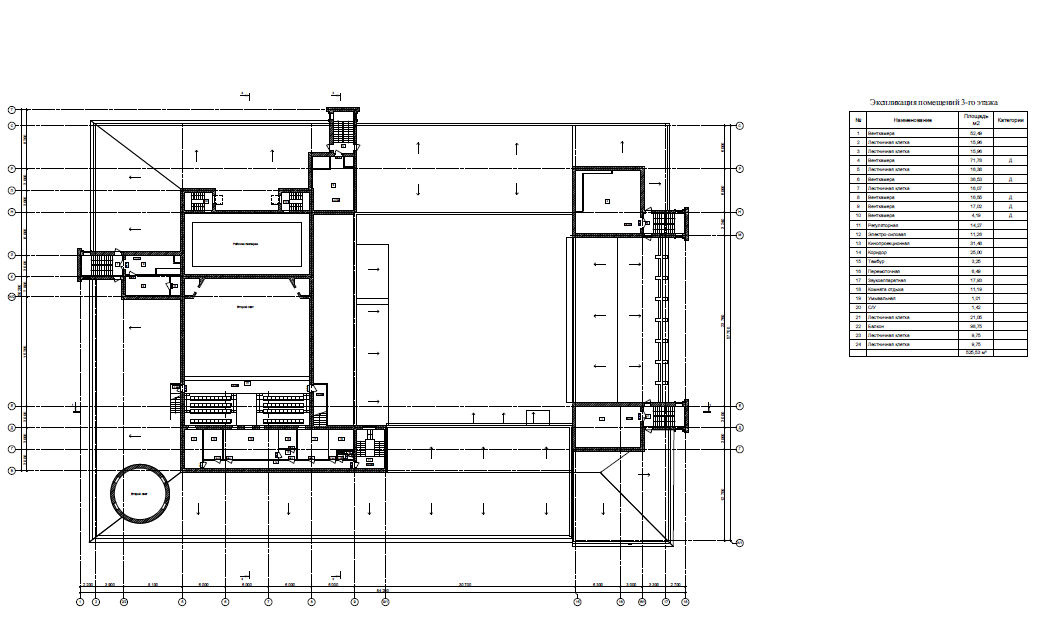
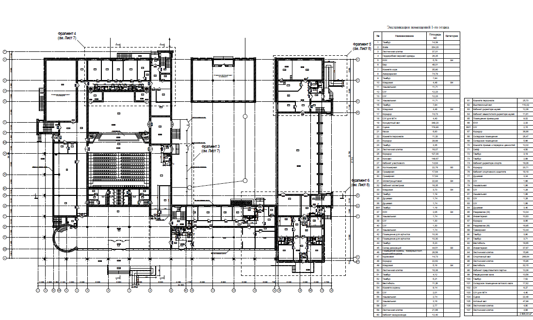
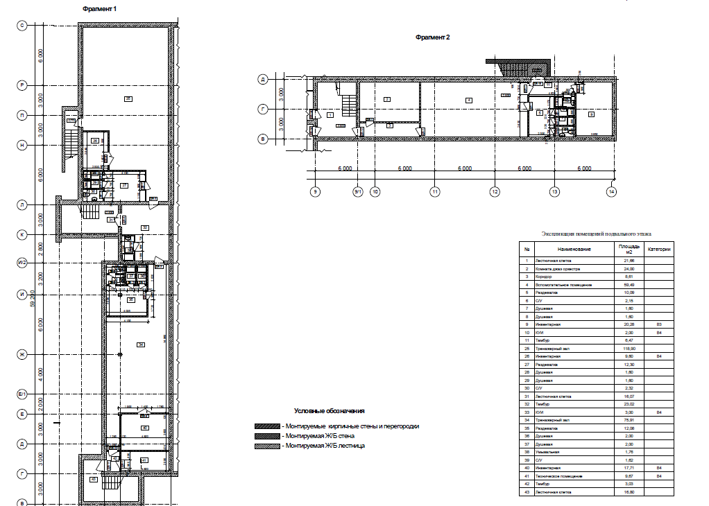
Типовой проект 264-12-131

Год постройки: 1985 г.
Конфигурация здания в плане: здание сложной формы в плане
Общая площадь: 6158,9 м 2
Количество этажей: надземных -4, подвальный-1
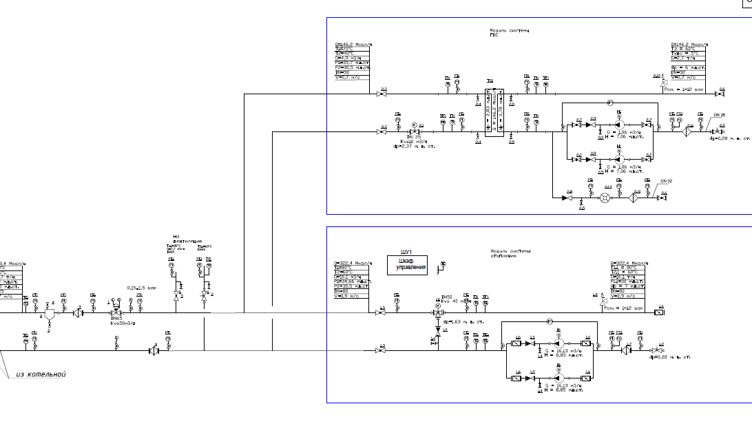
Общие сведения.
Конструктивная схема здания - здание с несущими наружными и внутренними кирпичными стенами, сборно-монолитным перекрытием и сборно-монолитным стоечно-балочным каркасом. Пространственная жесткость здания - Пространственная жесткость здания обеспечивается за счет конфигурации здания, совместной работы продольных и поперечных стен. Фундаменты - Ленточные, железобетонные. Наружные несущие стены - Из керамического кирпича, толщиной 510-640 мм. Вид отделки фасадов ниже отм. 0,000 - Штукатурка цементно-песчаным раствором, окраска; Облицовка фасадными композитными панелями; Облицовка керамогранитом на каркасе. Вид отделки фасадов выше отм. 0,000 - Штукатурка цементно-песчаным раствором, окраска; Облицовка фасадными композитными панелями. Внутренние несущие стены - Из керамического кирпича, толщиной 510 мм, 380 мм, толщиной 250 мм.