Не нашли что искали? Спросите у нас! Имеем архивы на 140 ТБ. У нас есть все современные проекты повторного применения и проекты ремонта советских типовых зданий. Пишите нам: info@proekt.sx
Вам не нужен весь проект? Сможем продать отдельную его часть (раздел или подраздел). Напишите нам! Для связи: info@proekt.sx
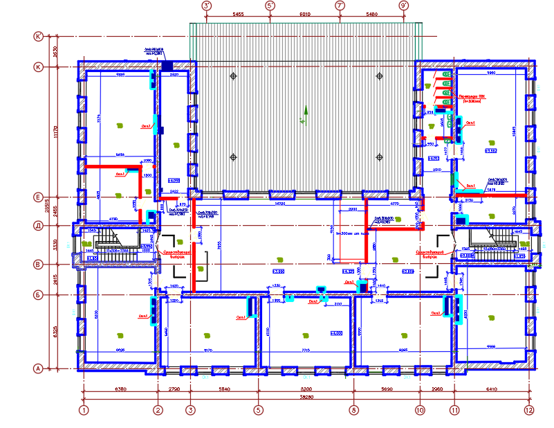
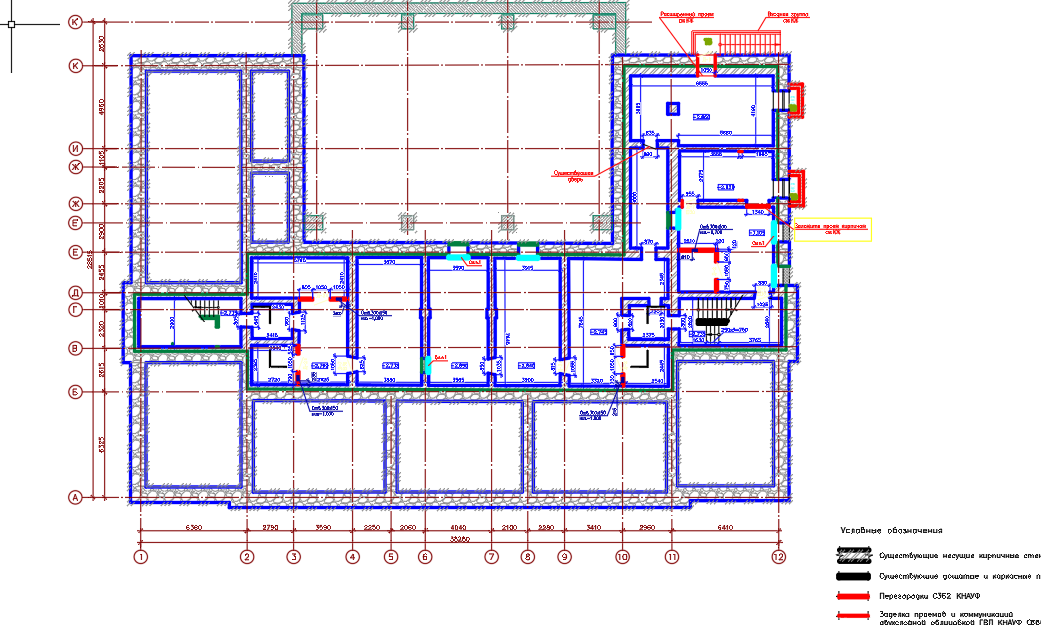
Типовой проект 2-02-05 (тип 256)
Рабочая документация включая сметы на комплексный капитальный ремонт ГОУ «Средняя общеобразовательная школа».
Общие сведения.
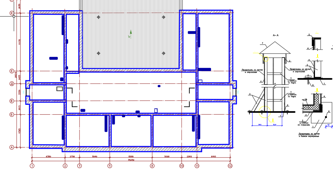
Фундаменты ленточные выполненные из бутового камня (песчаник) неправильной формы на цементно-известковом растворе. Глубина заложения подошвы фундаментов 3,4...3,6 м от планировочной отметки поверхности грунта. Ширина фундамента, расположенного под внутренними и наружными стенами соответствует толщине стен плюс 0-300мм. Вертикальная и горизонтальная гидроизоляция отсутствует. Наружные стены подвала возведены из бутового камня (песчаника) неправильной формы на цементно-известковом растворе. Толщина наружных стен подвала составляет 950-1255 мм. Внутренние стены подвала выполнены из кирпичной кладки на цементно-известковом растворе. Номинальная толщина внутренних стен подвала составляет 380, 510 и 640мм. Внутренние поверхности стены подвала оштукатурены и окрашены, в помещениях в осях 10-12/И-К стены обшиты листами гипсокартона по стальным напрвляющим. В наружных стенах в осях 12/Д-К и Е/6-9 предусмотрены оконные проемы. Окна в осях Е/6-9, в настоящее время выходящие в пристроенное помещение, заложены кирпичной кладкой толщиной в ½ кирпича. Окна в осях 12/Д-Ж закрыты щитами из досок, их световые приямки засыпаны грунтом. Стены здания возведены из глиняного кирпича на цементно-известковом растворе. Номинальная толщина наружных стен составляет 640мм, внутренних стен 380мм. В осях Г/6 и Г/7 в уровне первого этажа расположены кирпичные колонны. Колонны имеют квадратное поперечное сечение с номинальным размером 510х510мм. Фасады оштукатурены и окрашены. Перегородки в здании дощатые до 205 мм, а так же каркасные толщиной до 220мм с обшивкой листовыми материалами (фанера, гипсокартон). Со стороны помещений стены и дощатые перегородки оштукатурены цементно-песчаным раствором и окрашены, по отдельным стенам и перегородкам выполнена обшивка декоративными панелями и листовыми материалами по каркасу. Стены и перегородки санузлов облицованы керамической глазурованной плиткой. Полы в подвале выполнены в виде жёсткого основания из бетона или раствора. Чистовое покрытие полов представлено линолеумом. В отдельных помещениях линолеум уложен по дощатым полам, устроенным по жёсткому основанию. В помещениях подсобного назначения полы не имеют чистового покрытия. Перекрытие над подвалом монолитное железобетонное балочное. Выполнено в виде монолитной нарезной конструкции, имеющей сплошное опирание на внутренние стены подвала. Глубина опирания перекрытия на наружные стены подвала составляет 140 мм. Плита перекрытия над подвалом выполнена толщиной 130-150м и армирована ввязочной сеткой с ячейкой 150-200 мм из гладких стальных стержней. Толщина защитного слоя бетона составляет 15мм. Ширина балок 260 мм, высота от уровня низа плиты перекрытия 450 мм. Потолки подвала оштукатурены и окрашены. Потолки подвала оштукатурены и окрашены. Полы первого этажа в бесподвальной части здания деревянные дощатые с покрытием из линолеума. Перекрытие на отм. 3.990 устроено по деревянным балкам из бруса. Балки опираются на внутренние и наружные несущие стены. Глубина опирания балок на стены составляет не менее 200 мм. По черепным брускам сечением 40х40 мм, прибитым к балкам, устроен накат из досок толщиной 25 мм и выполнена шлаковая засыпка толщиной слоя 50 -90 мм. Снизу перекрытие подшито доской толщиной 25 мм и оштукатурено. В отдельных помещениях выполнены подвесные потолки по типу «Армстронг». Чердачное перекрытие представлено тремя основными конструктивными типами: - монолитная железобетонная плита над лестничными клетками в осях 1-2/В-Д и 11-12/В-Д. - деревянное перекрытие, представленное брусовыми балками, опертыми на несущие стены и подвесы, прикрепленные к металлодеревянным стропильным фермам в осях 2-11/Б-Е. - деревянное перекрытие в виде брусовых балок, опёртых на внутренние и наружные стены. К брусовым балкам деревянных перекрытий прибиты черепные бруски, по которым устроен накат из досок толщиной 25-60 мм. Глубина площадки опирания брусовых балок не менее 200 мм, за исключением балок в осях 2-11/Б-Е. Снизу деревянные перекрытия подшиты доской толщиной 25-30 мм, оштукатурены и окрашен. Потолки оформлены подвесными конструкциями с потолочными плитками по типу «Армстронг». Крыша здания многоскатная чердачная неутеплённая с несущими деревянными стропильными конструкциями. Стропильная система выполнена по наслонной схеме. Несущими конструкциями крыши являются стропила, изготовленные из обтёсанных с четырёх сторон брёвен сечением 175х175 мм, а также диагональные стропильные ноги сечением 180х180 мм. Стропила опираются на брусовый мауэрлат сечением 180х180, а также на подкосы, прогоны и деревянные рамы. Выполнены в виде сборных железобетонных ступеней, уложенных по стальным косоурам. Лестничные площадки монолитные железобетонные.

