Не нашли что искали? Спросите у нас! Имеем архивы на 140 ТБ. У нас есть все современные проекты повторного применения и проекты ремонта советских типовых зданий. Пишите нам: info@proekt.sx
Вам не нужен весь проект? Сможем продать отдельную его часть (раздел или подраздел). Напишите нам! Для связи: info@proekt.sx
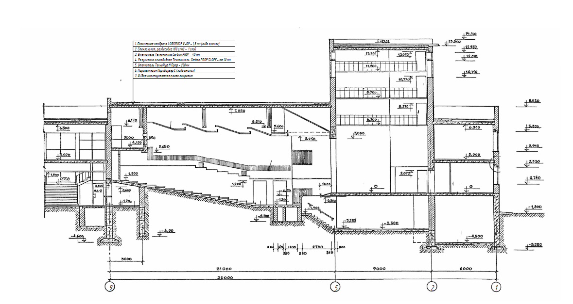
Типовой проект 264-12-142
Технико-экономические показатели:
Количество этажей здания, шт.:
Переменное – 2 эт;
5 эт (в осях 1-5…В-Ж; 3-5 – технические этажи)
Строительный объем здания, выше отм.-1,200 м3: 14348,92
в том числе в осях 2-5…В-К: 1809,17
в том числе в осях 1-5…В-Л, выше отм. 0,000: 830,55
в том числе остальной объем здания выше отм. -1,200: 11709,2
Площадь застройки, м2: 1788,27
Общая площадь здания, м2: 2833,05
Общие сведения.
Здание представляет собой кирпичное здание с жесткой конструктивной схемой, построенное в 1987 г по типовому проекту №264-12-142 «Сельский Дом культуры с залом на 400 мест, спортзалом 12x24 м. со стенами из кирпича» Фундаменты стен - ленточные из сборных железобетонных фундаментных плит по серии 1.112-1. Стены подвала из сборных бетонных блоков по серии 1.116-1, усилены монолитными железобетонными вставками. Наружные несущие стены из глиняного пустотелого кирпича марки 100 по ГОСТ 6316-74 на растворе марки 50 с облицовкой металлосайдингом. Внутренние несущие стены из глиняного обыкновенного кирпича марки 100 по ГОСТ 530-71 на растворе марки 50. Перегородки и внутренние самонесущие стены выполнены из глиняного обыкновенного кирпича марки 75 по ГОСТ 530-71 на растворе марки 50. Междуэтажные перекрытия и покрытие из железобетонных пустотных плит по серии 1.141-1; 1.241-1. Покрытие зрительного зала из сборных железобетонных предварительно-напряженных плит по серии 1.465-7. Плиты по сборным железобетонным предварительно-напряженным балкам по каталогу ИИ-03-02 альбом 109. Покрытие спортивного зала из сборных железобетонных предварительно-напряженных плит по серии 1.465-3*. Портальный проем в холле длиной 9,0 м перекрывается монолитной железобетонной балкой МБ-1. Кровля совмещенная, с полной заменой кровельного пирога при капитальном ремонте. Водостоки внутренние с обследованием и прочисткой во время проведения капитального ремонта. Лестницы из наборных ступеней серии 1.155-1 по металлическим косоурам, и из сборных маршей и площадок по серии 1.250-1. Строительные конструкции, применяемые в здании, не способствуют скрытому распространению пламени. Здание является одним пожарным отсеком.

