Не нашли что искали? Спросите у нас! Имеем архивы на 140 ТБ. У нас есть все современные проекты повторного применения и проекты ремонта советских типовых зданий. Пишите нам: info@proekt.sx
Вам не нужен весь проект? Сможем продать отдельную его часть (раздел или подраздел). Напишите нам! Для связи: info@proekt.sx
Типовой проект 264-12-65
Технико-экономические показатели:
Общая площадь объекта, м2: 971,6
Полезная площадь, м2: 816,7
Расчетная площадь, м2: 722,4
Максимальная высота здания, м: 11,630
Этажность: 3
Количество этажей: 3
Площадь застройки здания, м2: 748,7
Строительный объём, м3: 6141,1
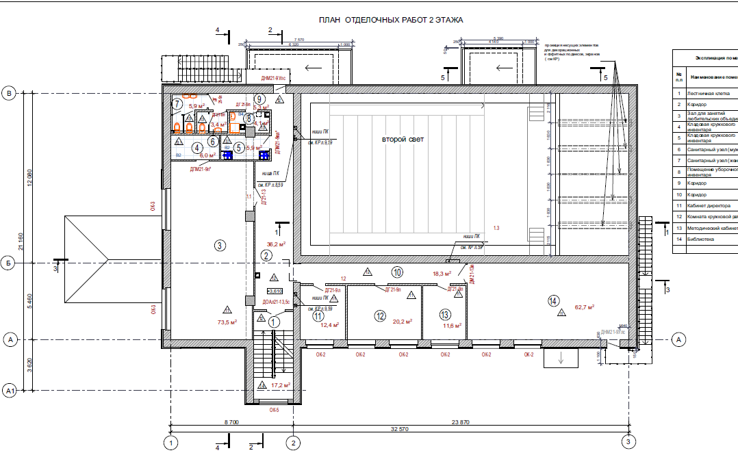
Общие сведения.
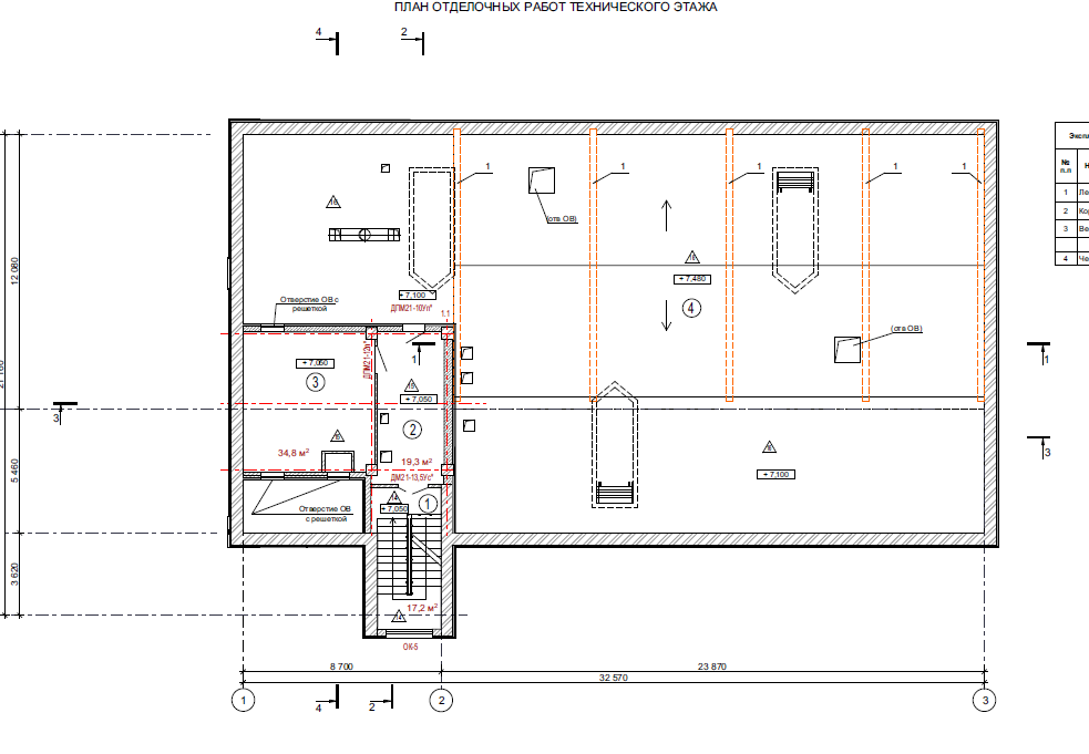
В настоящее время это эксплуатируемое двухэтажное здание из силикатного кирпича с плоской кровлей с габаритными размерами в обмерных осях 17,54х32,57 м, с не эксплуатируемым подвалом. Здание построено в 1975 году по типовому проекту 264-12-65 «Клуб с актовым залом на 300мест». Высота первого этажа составляет 3,6 м. Высота помещений второго этажа составляет 2,8-2,9 м (от пола до несущей конструкции покрытия). Высота помещений подвала 3,03 м. Габаритные размеры помещения подвала 5,07х12.4 м. В состав помещений первого этажа входят: тамбур, вестибюль, гардероб, диско-зал, комната, ди-джея, зрительный зал на 275 мест, артистическая, подсобное помещение, коридор, лестница. Узел ввода совмещен с помещением гардероба. В состав помещений второго этажа входят: библиотека, хореографический зал, административные помещения, коридор, подсобные помещения. Помещение подвала в настоящий момент не эксплуатируется. Здание имеет неполный каркас с несущими кирпичными продольными наружными и внутренними стенами толщиной 510 мм. Перекрытие над подвалом и перекрытие 1 этажа выполнено из сборных многопустотных ж/б плит. Покрытие над залом выполнено из двускатных ж/б балок пролетом 12 м и ребристых плит покрытия. Кровля совмещенная, с покрытием из рубероида, с неорганизованным наружным водостоком. Вертикальные коммуникации представлены внутренней открытой лестницей с шириной марша 1350мм. Лестница завершается выходом на кровлю. Тип лестницы («открытая») и геометрические размеры элементов лестницы не соответствуют современным требованиям пожарной безопасности в части эвакуации (СП1.13130.2009 ЭВАКУАЦИОННЫЕ ПУТИ И ВЫХОДЫ), а именно: глубина площадки менее ширины марша, подъемы имеют различные значения высоты, проступи – различные значения глубины по всей лестнице. Со второго этажа имеются два эвакуационных выхода по наружным металлическим лестницам шириной 600-700 мм.

