Не нашли что искали? Спросите у нас! Имеем архивы на 140 ТБ. У нас есть все современные проекты повторного применения и проекты ремонта советских типовых зданий. Пишите нам: info@proekt.sx
Вам не нужен весь проект? Сможем продать отдельную его часть (раздел или подраздел). Напишите нам! Для связи: info@proekt.sx
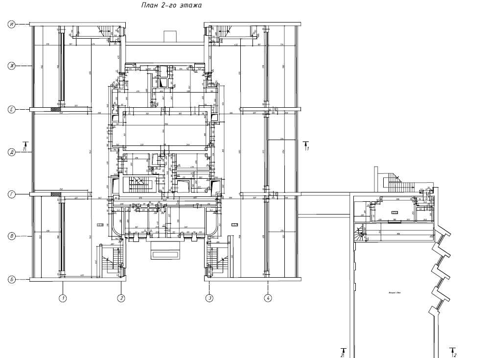
Типовой проект 244-5-13
Клуб-столовая пионерского лагеря-базы отдыха на 720/640 мест типовой проект 244-5-13
Технико-экономические показатели:
Площадь земельного участка, Га: 24,5
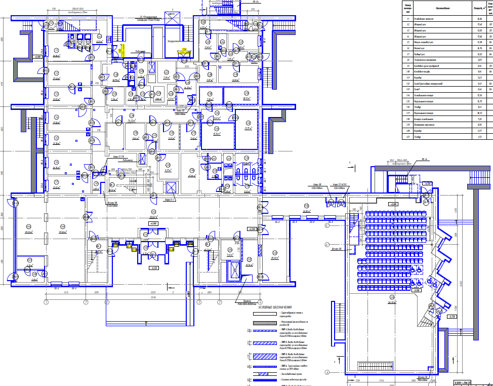
Площадь застройки, кв.м: 1943,10
Количество этажей: 3
надземных: 2
подземных: 1
Строительный объём, м3: 13928
надземная часть, м3: 12745
подземная часть, м3: 1183
Общая площадь здания, м2: 3400,34
надземная часть, м2: 2976,83
подземная часть, м2: 423,51
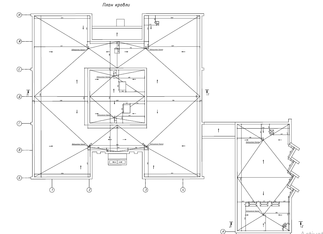
Общие сведения.
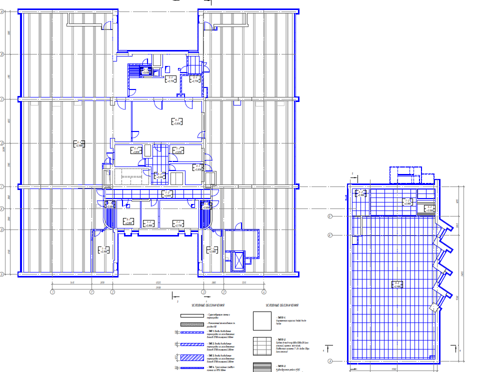
Здание клуба-столовой переменной этажности от одного до трех этажей, построено по типовому проекту 244-5-13. Подвал имеется под частью здания. Здание построено в 1989 г. Наружные стены выполнены из керамического щелевого кирпича на цементно-песчаном растворе, с облицовкой из лицевого щелевого кирпича светлого тона. Внутренними опорами для перекрытий служат кирпичные несущие стены из керамического щелевого кирпича на цементно-песчаном растворе. Перекрытие над подвалом/подпольем сборные железобетонные многопустотные и ребристые плиты по несущим кирпичным стенам. Монолитные железобетонные участки. Междуэтажные перекрытия сборные железобетонные многопустотные плиты по несущим кирпичным стенам. Монолитные железобетонные участки по несущим кирпичным стенам и стальным балкам. Перекрытие антресоли (балкона) клуба из профнастила по стальным балкам. Покрытие сборные железобетонные многопустотные плиты по несущим кирпичным стенам. Монолитные железобетонные участки по несущим кирпичным стенам и стальным балкам. Перемычки сборные железобетонные и металлические. Кровля здания плоская, утепленная с внутренним организованным водостоком, выполнена нескольких слоев рубероида на битумной мастике.

