Не нашли что искали? Спросите у нас! Имеем архивы на 140 ТБ. У нас есть все современные проекты повторного применения и проекты ремонта советских типовых зданий. Пишите нам: info@proekt.sx
Вам не нужен весь проект? Сможем продать отдельную его часть (раздел или подраздел). Напишите нам! Для связи: info@proekt.sx
Проект котельной 0,8 МВт
Технико-экономические характеристики объекта капитального строительства
Площадь земельного участка, га: 0,0491
Площадь застройки, м2: 235,2
Строительный объем, м3: 1824,0
Общая площадь здания, м2: 220,2
Этажность, эт.: 1
Архитектурные и объемно-планировочные решения
Запроектированная котельная – одноэтажное здание с максимальными размерами в плане 24,24 х 15,3 м и высотой от планировочной отметки поверхности земли до верха покрытия - 8,24 м. В здании запроектированы котельный зал и помещение дизель-генератора. Покрытие корпуса плоское с неорганизованным водостоком, кровля - рулонная. Наружная отделка здания – окраска сэндвич-панелей в заводских условиях. Между жилым домом 1 и домом 2, в месте перепада отметок покрытия территории проектной документацией предусмотрено устройство разделительной подпорной стенки.
Объемно-планировочные решения котельной
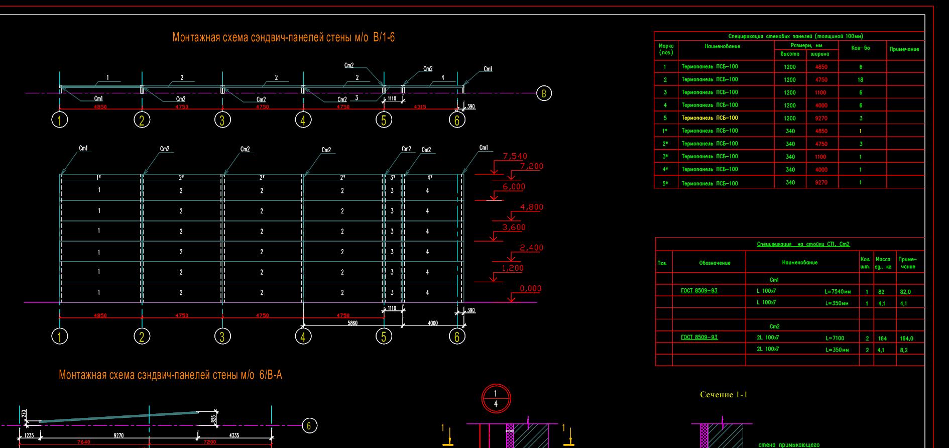
Здание котельной Г-образное в плане. Размеры здания в координационных осях: 23,415 х 14,84 м. Высота котельного зала до низа строительных конструкций 6,8 м. Котельная зал запроектирована в несущем стальном рамно-связевом каркасе. Стро-пильные конструкции - стальные балки. Стены-трехслойные сэндвич-панели. Кровля- односкатная, совмещенная. Гидроизоляционный слой-2 слоя "Техноэласта". Утеплитель -минераловатная плита "Рокволл-Руф-Баттс". Несущий элемент кровли - оцинкованный профилированный настил Н114-600-0,8. В котельной выгорожено помещение дизель-генератора. Каркас котельной-металлический, рамно-связевый. Двери наружные и внутренние - металлические по ГОСТам, в обычном и противопо-жарном исполнении. Перегородки – «сэндвич-панели» толщиной 100мм с минераловатным утеплителем.
Основное оборудование.
К установке приняты: водогрейный котлоагрегат Термотехник ТТ100-3000 кВт – 2 шт, оборудованный комбинированной модулируемой горелкой GKP 280 M фирмы “ Oilon ”; водогрейный котлоагрегат Термотехник ТТ100-2000 кВт – 1 шт, оборудованный комбинированной модулируемой горелкой GKP 150 M фирмы “ Oilon ”. Котлы, предназначены для работы на жидком или газовом топливе, снабжены ком-бинированными горелками (газ-дизель). Все габаритные размеры котлоагрегатов приняты на основании чертежей выданных заводом-изготовителем котлов. Подбор котлоагрегатов произведен, исходя из обеспечения расходов тепла на отопление и вентиляцию при максимально – зимнем режиме и потери тепла в тепловых сетях. ТЕРМОТЕХНИК ТТ100— трёхходовые стальные низкотемпературные водогрейные котлы газотрубно - дымогарного типа, оснащенные топкой, работающей под наддувом. Котлы предназначены для производства теплофикационной горячей воды с максимальной температурой 115°С при допустимом рабочем давлении 0,6 МПа. Котлы используются для работы только в закрытых системах теплоснабжения. Номинальная теплопроизводительность котлоагрегата марки ТЕРМОТЕХНИК ТТ 100 3000 - 3000 кВт. Номинальная теплопроизводительность котлоагрегата марки ТЕРМОТЕХНИК ТТ 100 2000 - 2000 кВт. Избыточное рабочее давление теплоно-сителя в котле – 4,1 бар, рабочая температура – 110 ˚С. КПД: 92%.
Конструктивные и объемно-планировочные решения
Конструктивная схема котельной - каркасно-связевая. Каркас – стальной, однопролётный. Сталь С245. Наружные стены - навесные сэндвич-панели, толщиной 200 и 100 мм, горизонтальной навески, с креплением к фахверку. Колонны – из прокатных двутавров 20Ш1. Сталь С245. Элементы фахверка и опоры технологической площадки и оборудования - из замкнутых гнуто-сварных профилей. Балки покрытия здания - из прокатных двутавров, однопролётные. Крепление балок - болтовое, шарнирное. Перекрытие технологической площадки – из листовой стали толщиной 4 мм по системе перекрёстных балок с максимальным шагом второстепенных балок не более 1,2 м. Балки перекрытия - их прокатных двутавров и швеллеров, с шарнирным креплением к колоннам. Вертикальные связи жёсткости здания - из замкнутых гнуто-сварных профилей запроектированы по наружным осям здания в двух направлениях. Покрытие - односкатное из профилированного настила СКН 157-800-1,2 по стальным балкам. Горизонтальные связи жёсткости покрытия - из замкнутых гнуто-сварных профилей. Пространственная жесткость и устойчивость здания котельной обеспечивается совместной работой каркаса, вертикальных связей жесткости в двух направлениях, горизонтальных связей жёсткости и профлиста покрытия. Газоходы – трубы диаметром 500 мм из коррозионно-стойкой листовой стали толщиной 1,5 мм, с внешним утеплением (толщина слоя 100 мм) и защитой кожухом из листовой оцинкованной стали. Газоходы – высотой 34 м, с опиранием на фундамент здания и с креплением к стенам соседнего здания анкерами через горизонтальные диафрагмы (площадки) и кронштейны, в зоне чердака и парапета – с креплением хомутами к стальной обойме. Усилие на крепёжный анкер на выдёргивание - не более 0,07 тс. Шаг анкеров по высоте - не более 1,2 м. Шаг диафрагм по высоте – 3,0 м. Расчёты выполнены на программном комплексе SCAD v.11.3. Расчёт конструкции дымовой трубы выполнен с учётом динамического воздействия ветра. За отметку 0,000 принята отметка пола котельной, соответствующая абсолютной отметке 7.29. Фундаменты разработаны на основании инженерно-геологических изысканий, выполненных на участке строительства. Фундамент здания - монолитная железобетонная плита мелкого заложения толщиной 400 мм, из бетона B25, W2, F100 и арматуры класса А-III. Абсолютная отметка подошвы – 6.85. Давление под подошвой фундамента котельной – не более 0,05 МПа. Подготовка под фундаментом - из слоя монолитного бетона В7,5, толщиной 100 мм. Насыпные грунты в основании фундамента котельной частично заменяются песчаной подушкой из среднезернистого песка плотностью не менее 1,65 т/м3 на глубину подошвы сохраняемых фундаментов. Основание песчаной подушки – песок, крупный, средней плотности насыщенный водой (ИГЭ-2) с е = 0,65, Е = 30 МПа, φII = 38° с расчётным сопротивлением – не менее 0,10 МПа. Ожидаемая расчётная осадка фундамента котельной – 1,9 см. Дополнительная осадка фундамента стены соседнего дома не превысит 0,38 см, крен 0,0008. В проектной документации предусмотрен мониторинг строительства и окружающей застройки. Здание котельной запроектировано на месте демонтированного здания котельной с сохранением существующих фундаментов, расположенных вдоль фундаментов примыкающих зданий. Сохраняемые фундаменты в зоне перепада рельефа усиливаются железобетонной обоймой. Для уменьшения негативного воздействия на соседние здания в проектной документации предусмотрено: устройство фундаментов с нормируемым отступом от стен соседних зданий – 300 мм; откопку котлована предусмотрено вести захватками. Обследование демонтируемого здания котельной выполнено. Здание 1-2 этажное без подвала построено в 1960-х годах. Стены - из полнотелого керамического кирпича толщиной 780-510 мм, с трещинами раскрытием до 20 мм. Перекрытие – из железобетонных мелкоразмерных плит по стальным балкам. Покрытие - из железобетонных плит по стальным балкам. Дымовая труба – стальная труба на собственном фундаменте, вентиляционный короб – с креплением к стене соседнего здания. Фундаменты – ленточные бутовые. Состояние конструкций признано – ограниченно-работоспособным. Категория технического состояния здания – 3. В связи с выявленными отступлениями от нормативных требований, предъявляемыми для зданий котельных, принято решение о демонтаже здания. Обследование зданий, попадающих в зону возможного негативного влияния по статической работе грунтового основания. Здание по адресу: Лиговский пр., дом 63 литера А непосредственно примыкает к запроектированному зданию. Здание – шести-семиэтажное, построено в 1909 году. Стены – из полнотелого кирпича толщиной 650 мм, с трещинами раскрытием до 30 мм, с участками увлажнения и выветривания раствора из кладки на глубину до 20 мм. Фундаменты - ленточные бутовые. Общее состояние фундаментов - работоспособное, стен – ограниченно работоспособное. Категория технического состояния здания – 3. В соответствии с расчётами, установлено, что дополнительная осадка фундаментов примыкающих зданий не превысит 0,38 см, относительная разность осадок не превысит 0,0008. что находится в допустимых пределах.
Инженерное оборудование, сети инженерно-технического обеспечения, инженерно-технические мероприятия
Электроснабжение газовой котельной (на внутридворовой территории), запроектированной в существующем здании, в нормальном режиме предусматривается согласно ТУ от электрических сетей общего пользования системы централизованного электроснабжения от одного источника – ТП(420,10/0,4 кВ). В качестве второго независимого взаимно-резервирующего источника предусмотрен автономный дизель-генератор. В аварийном режиме при внезапном отключении ВРУ от системы централизованного электроснабжения, питание переключается на автономный источник – дизель-генераторную установку (ДГУ) мощностью 120 кВ∙А, включаемую автоматически. Расчетная мощность электроприемников котельной составляет 105,4 кВ∙А, категория электроприемников по надежности электроснабжения – вторая, обеспечивается от двух независимых взаимо-резервирующих источников по режиму первой категории. ДГУ установлен в отдельном помещении общего здания с котельной. Заземляющее устройство котельной и ДГУ состоит из общего искусственного наружного заземлителя и естественного заземлителя – фундаментов и пола здания котельной, расчетная величина переходного сопротивления значительно ниже величины нормированной для заземления нейтрали генератора. Приборы учета электроэнергии устанавливаются в РУНН 0,4 кВ ТП 420 и на панелях ВРУ котельной. Устройство распределительных и групповых сетей – по нормативам, защитные аппараты устанавливаются на панелях ВРУ и местных щитках, аппараты управления освещением и розетки для переносных электроприемников – на стенах. Заземление открытых проводящих частей электрооборудования – по проводникам РЕ в кабелях групповой и распределительной сети, тип системы заземления открытых проводящих частей - TN-S (раздельная), система уравнивания и выравнивание потенциалов соответствуют нормативам. Принятые схемно-конструктивные решения, проектируемой электроустановки, обеспечивают электробезопасность не категорированного и эксплуатационного персонала (твёрдая изоляция, отключение нестационарных процессов, отсутствие напряжения прикосновения и др.). Молниезащита здания обеспечивается молниеприёмниками на дымовых трубах, металлическими элементами на кровле котельной и устройствами токоотводов, присоединяемых к заземлителю. Водоснабжение (ХВС) и водоотведение потребителей объекта предусмотрено в соответствии с: условиями подключения; корректировка условий подключения. Водоснабжение (ХВС) предусмотрено от коммунальной сети водопровода Д=300 мм по Лиговскому пр. по двум вводам из труб ПЭ100SDR11 Д=125 мм и нержавеющих электросварных водопроводных труб Д=129 мм (транзит по подвалу). На вводах предусматривается устройство водомерных узлов по ЦИРВ. Гарантированный напор в точке присоединения - 28 м вод.ст. Расчетный расход холодной воды – 234,71 м3/сут (подпитка тепловых сетей, регенерация фильтров, приготовление горячей воды, уборка); периодические нужды – 117,7 м3/сут (заполнение системы тепловых се-тей и котлового контура 1 раз в год). Расход воды на внутреннее пожаротушение - 5,0 л/с (2 струи по 2,5 л/с). Количество пожарных кранов Д = 50 мм – менее 12 шт. Для здания запроектирована объединенная система водопровода. Потребный напор для системы объединенного водопровода – 23,90 м вод.ст. Система объединенного водопровода – кольцевая, однозонная. Для устройства системы объединенного водопровода выбраны стальные водогазопроводные трубы. Наружное пожаротушение предусмотрено от существующих пожарных гидрантов, установленных на коммунальных сетях водопровода. Расход воды на наружное пожаротушение – 10 л/с. Отведение производственных стоков в объеме – 8,06 м3/сут, периодический сброс – 21,3 м3/сут 1 раз в год (опорожнение системы 1 раз в год), дождевых стоков с расходом - 2,68 л/с предусмотрено в ближайший смотровой колодец на сети дворовой коммунальной общесплавной коммунальной канализации. Для прокладки сети общесплавной канализации выбраны полипропиленовые канализационные трубы. Для здания запроектированы системы производственной канализации (для отвода условно чистых стоков от котлового оборудования) и наружных водостоков. Для устройства систем бытовой канализации выбраны чугунные канализационные трубы. Теплоноситель в системе отопления котельной и помещения дизель-генераторной – 45% раствор пропиленгликоля с температурой 95-70°С. Отопление помещения котельного зала рассчитано на поддержание температуры не ниже +5оС и решено за счет теплопоступлений от технологического оборудования и трубопроводов и применения калориферов типа КСК. Для отопления помещений дизель-генераторной предусмотрена установка панельных радиаторов. У приборов предусмотрена установка запорно-регулировочной арматуры. Трубопроводы к отопительным приборам прокладываются в тепловой изоляции. Для устройства системы отопления выбраны трубы стальные водогазопроводные ГОСТ 3262-75* и стальные электросварные ГОСТ 10704-91. В помещении котельного зала предусмотрена приточно-вытяжная вентиляция, рассчитанная на трехкратный воздухообмен общеобменной вентиляции, а также обеспечивающая расход воздуха необходимый для горения топлива. Приток воздуха для общеобменной и технологической вентиляции запроектирован через жалюзийные решетки в наружных ограждениях. Для удаления воздуха запроектированы системы вытяжной вентиляции с механическим побуждением. В помещении дизель-генераторной предусмотрена общеобменная приточная вентиляция с естественным побуждением и вытяжная - с механическим побуждением, рассчитанная на однократный воздухообмен. Обеспечено удаление теплоизбытков от оборудования дизель-генератора. Предусмотрены мероприятия по шумоглушению и противопожарной защите. Для теплоснабжения зданий запроектирована автоматизированная, газовая, пристроенная котельная. По степени взрывопожарной опасности помещение котельной относится к категории «Г». Установленная мощность котельной – 8,0 МВт. В качестве легкосбрасываемых конструкций из расчета 0,03 м2 на 1 м3 объема котельного зала предусмотрено фасадное остекление. Потребители тепла относятся ко второй категории по надежности теплоснабжения. В котельной устанавливаются три водогрейных котла марки Термотехник ТТ100 теплопроизводительностью: два котла по 3000 кВт и один 2000 кВт с комбинированными горелками Oilon GKP-280M и GKP-150M. Расчетная теплопроизводительность котельной с учетом потерь в сетях и собственных нужд котельной составит 5,963 МВт, в том числе: на отопление – 4,796 МВт; ГВСср. – 0,549 МВт; на потери в тепловых сетях и собственные нужды котельной - 0,618 МВт. Основной вид топлива - природный газ QpН = 33520 кДж/м3 (8000 ккал/м3). Схема присоединения тепловых сетей предназначенных для транспортировки теплоносителя к системам теплоснабжения - независимая через теплообменники. Предусматривается регулирование температуры теплоносителя в зависимости от температуры наружного воздуха. Регулирование работы котлов и поддержание необходимых параметров теплоносителя обеспечивается автоматикой котельной. Работа котельной – в автоматическом режиме, без постоянного присут-ствия обслуживающего персонала. Максимальная температура воды на выходе из котлов 115°С. Теплоноситель на выходе из котельной - вода с температурой 95°С. Для компенсации температурных расширений воды в котловом контуре предусмотрены три расширительных бака V= 1000 л и одна V= 60 л. В котельной устанавливаются вспомогательное оборудование: индивидуальные насосы котлового контура IL65/120; насосы сетевого контура IL100/190; насосы системы ГВС BL40/170; повысительные насосы - BL50/170; теплообменники пластинчатые системы отопления M15 - 2 шт., мощностью 3100 кВт каждый; теплообменники пластинчатые системы ГВС M6-МFG – 2 шт. мощностью 1300 кВт каждый; бак ГВС V= 3 м3; блок химводоподготовки с системой обезжелезивания воды SLI 3672 и умягчения SLS0844 и комплексом дозирования реагентом Advantage К350. Для учета расхода тепловой энергии предусмотрена установка узла учета расхода тепловой энергии на основе электромагнитных расходомеров. Для отведения продуктов сгорания запроектированы металлические индивидуальные газоходы и дымовые трубы высотой 34 м от пола котельной, диаметром Ду 500 мм. Температура уходящих дымовых газов - 190°С. В проектной документации предусмотрена теплоизоляция теплопроводов, газоходов и оборудования. Резервное топливоснабжение не предусмотрено. Запроектированный бак для дизельного топлива объемом 0,8 м3, топливопроводы и запорно-регулирующая арматура предусматривают возможность работы котельной на жидком топливе. Газоснабжение котельной предусматривается в соответствии с ТУ. Точка подключения – проектируемый полиэтиленовый газопровод-ввод диаметром 125 мм к закрывающейся котельной. Для газоснабжения котельной предусмотрена прокладка подземного полиэтиленового газопровода среднего давления диаметром 160 мм по внутридворовой территории до выхода на фасад котельной, затем стального надземного газопровода среднего давления до устанавливаемого на фасаде здания котельной ШРП-НОРД-NORVAL/50-2/01, прокладка надземного стального газопровода низкого давления диаметром 273 мм от ШРП до ввода в помещение котельной. Давление газа в точке врезки 0,11 МПа. Давление газа на входе в котельную – 4,85 кПа. Для прокладки выбраны стальные электросварные прямошовные трубы по ГОСТ 10704-91, В-10 ГОСТ 10705-80*. Для коммерческого учета количества газа устанавливается газовый счетчик типа СГ16МТ. Максимальный расход газа – 993,2 м3/ч. ...

