Не нашли что искали? Спросите у нас! Имеем архивы на 140 ТБ. У нас есть все современные проекты повторного применения и проекты ремонта советских типовых зданий. Пишите нам: info@proekt.sx
Вам не нужен весь проект? Сможем продать отдельную его часть (раздел или подраздел). Напишите нам! Для связи: info@proekt.sx
Школа типовой проект 221-1-25.391
Типовой проект 221-1-25-391 - неполная средняя школа на 9 классов (216 учащихся).
Технико-экономические показатели.
Площадь застройки м2: 1257,3
Общая площадь, м2: 2320,6
Строительный объем, м3: 8298,2
Этажность, шт.: 2
Количество этажей, шт.: 3
Площадь ремонтируемых помещений, м2: 2320,6
Площадь крыши, м2: 1082
Общие сведения.
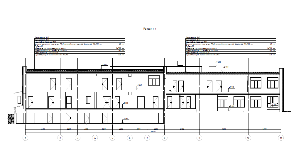
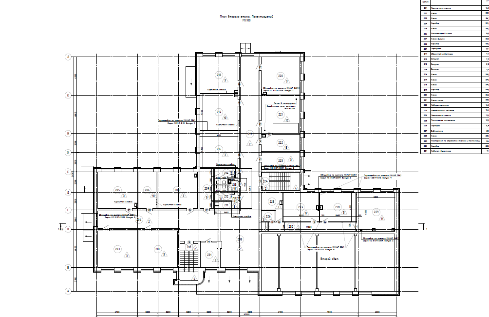
Существующее здание двухэтажное, сложной конфигурации в плане, с подвалом, с размерами в крайних осях 47,0×36,7 м. Конструктивная схема здания – бескаркасная с продольными и поперечными несущими стенами. Пространственная жесткость, устойчивость и геометрическая неизменяемость обеспечивается совместной работой несущих стен и дисков перекрытия. Фундаменты – ленточные сборные железобетонные. Стены – кирпичные, наружные толщиной 510 мм, внутренние толщиной 380 мм. Перегородки – кирпичные, толщиной 120мм. Перекрытие – сборные железобетонные многопустотные плиты. Балки покрытия в спортивном зале – сборные железобетонные. Лестницы – сборные железобетонные марши. Кровля - мягкая рулонная из нескольких слоев рубероида. Заполнение оконных проемов – блоки из ПВХ элементов со стеклопакетами. Заполнение дверных проемов – деревянные глухие блоки, блоки из ПВХ элементов. Год постройки – 1988 г.

